Новости Сити-Дачи
На завершающем этапе строительства деревянные дома с семейной верандой + необходимым минимумом коммуникаций по доступной цене! Сдача – лето 2024 года.
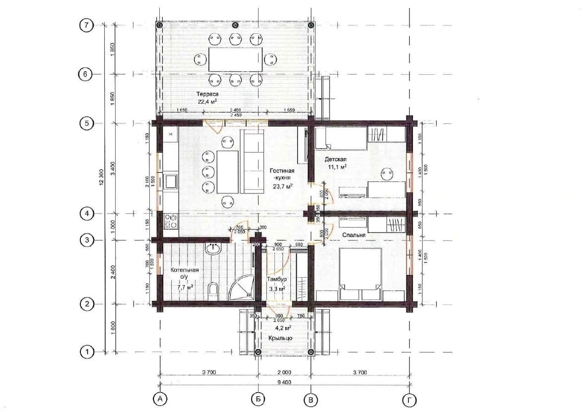
Целый квартал готовых домовладений из экологичных материалов – оцилиндрованного бревна, расположился в самом центре дачного поселка «Сити-Дачи». Площадь домов - 88.4 квм. В стоимость дома включен земельный участок.
Технические характеристики готовых домов:
- фундамент: плита монолитная
- материал наружных стен: деревянные (оциллированное бревно, диаметр 200)
- крыша: кровельный шифер
- перекрытия деревянные с теплоизоляцией 200мм.
- электричество: разводка (каждая розетка на 16 ампер)
- водоснабжение: скважина, насос, мембранный бак
- водоотведение: выгребная яма (6 куб.метров)
- отопление: система отопления «Коузи»
- окна: пластиковые
- входная дверь: металлическая
- этажей: 1
- год завершения строительства: 2024
- веранда: имеется
- крыльцо: имеется
- земля: ИЖС

Ваши вопросы и запись на просмотр:
☎ 8(351)270-07-72, +7 (932) 307-59-01 офис продаж

1.05.2024
Готовые дома в «Сити-Дачи» рядом с общественной территорией
Made on
Tilda